Hi!
Projects
Contact
Hi!
Projects
Contact
Rojas Ferri
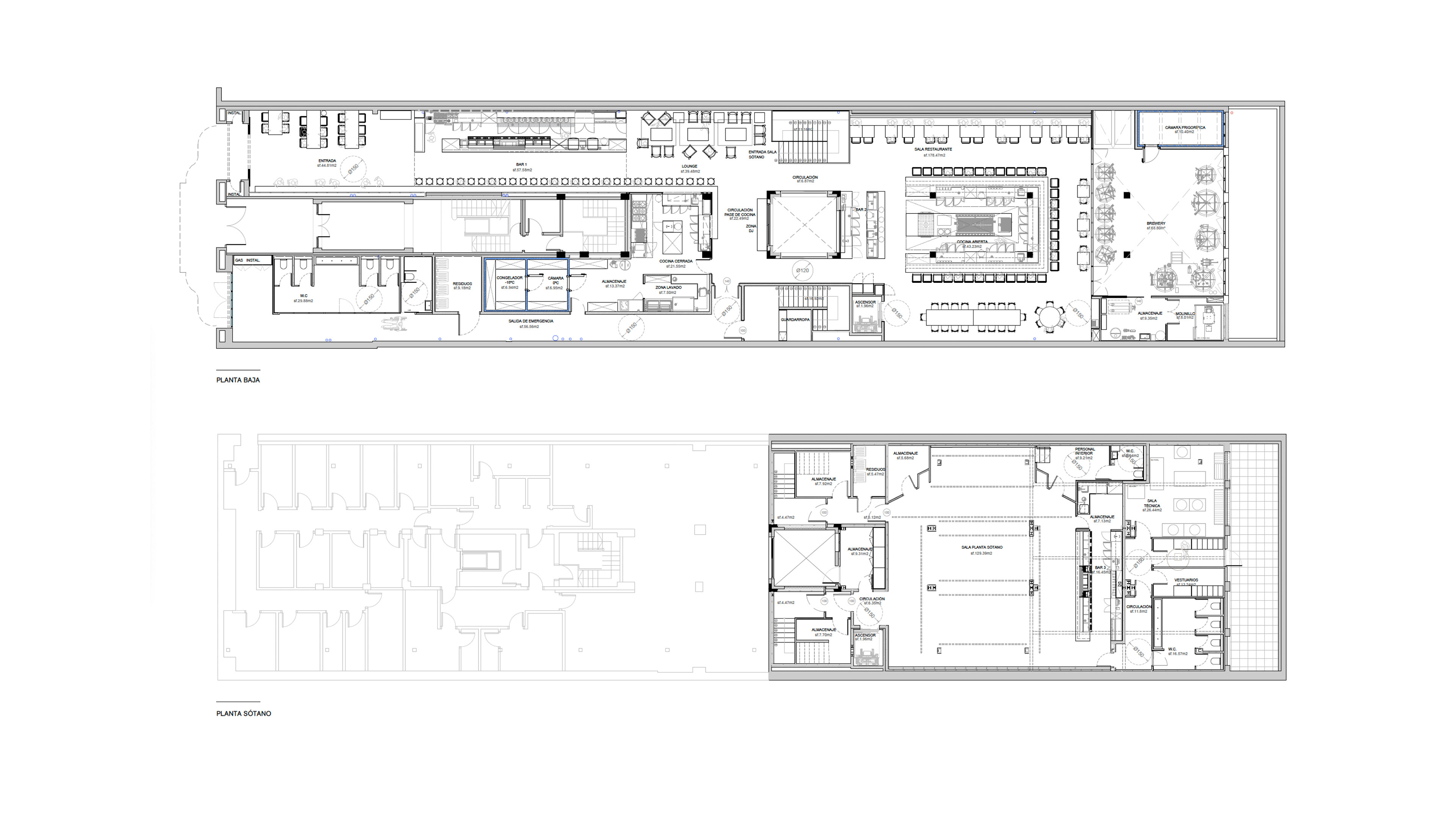
La Textil Bar | Interior design
Interior design proposal for La Textil. Surface 1.050 m2 | Year 2020 In collab with Pascuals design
Copyright © Pascuals design
You may also like
3D | Conceptual views
2024
La casa ecológica
2024
Storytelling about two friends - Conceptual design
2021
Miami Experience | Exhibition design
2024
Interfaces: 100 años de diseño en Simon | Exhibition
2024
PACMOON | Motion Graphics
2024
BOWD | Exhibition design & Brochure
2021
Solar Tree | Sculpture
2024
Harlem | Branding Identity
2024
International Volley
2022
↑
Back to Top